Chiuduno - Rustico
Riferimento 12824
€ 120.000 m2 334 | Piano: terra | N. box: 0 | N. bagni: 1 | Cl. Energ.: G

Descrizione
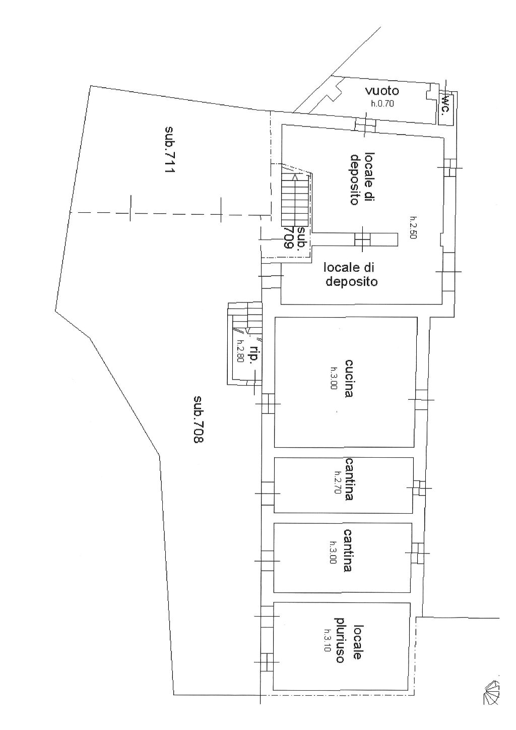
Chiuduno a due passi dal centro Esclusiva Stella del Nord propone nuovissima acquisizione, Porzione cielo a terra di Fabbricato Rustico . Immobile da ristrutturare tranne il tetto e le solette che sono state rifatte qualche anno fa. Immobile di circa 310 mq disposto su 3 piani fuori terra, dove poter ricavare o un importate abitazione o più abitazioni Nella parte posteriore si può frazionare terreno e per renderlo di pertinenza creando un accesso carraio privato.
Chiedi informazioni
Richiedi informazioni su questa offerta.
Contatta l'agenzia
Contatta la nostra agenzia per maggiori informazini sulle nostre offerte immobiliari.
035 19770930
info@stelladelnord.net
La tua agenzia immobiliare
Professionalità, sicurezza e serenità per vendere e acquistare casa
Stella del nord - Agenzia Immobiliare
Via Monsignor Valoti, 21 - 24060 Chiuduno (BG)
Telefono e Fax: 035 19770930
E-mail: info@stelladelnord.net
P.IVA: 04523360164