Bolgare - Attico
Riferimento 12719
€ 279.000 m2 89 | Piano: 1 | N. box: 2 | N. bagni: 2 | Cl. Energ.: A1

Descrizione
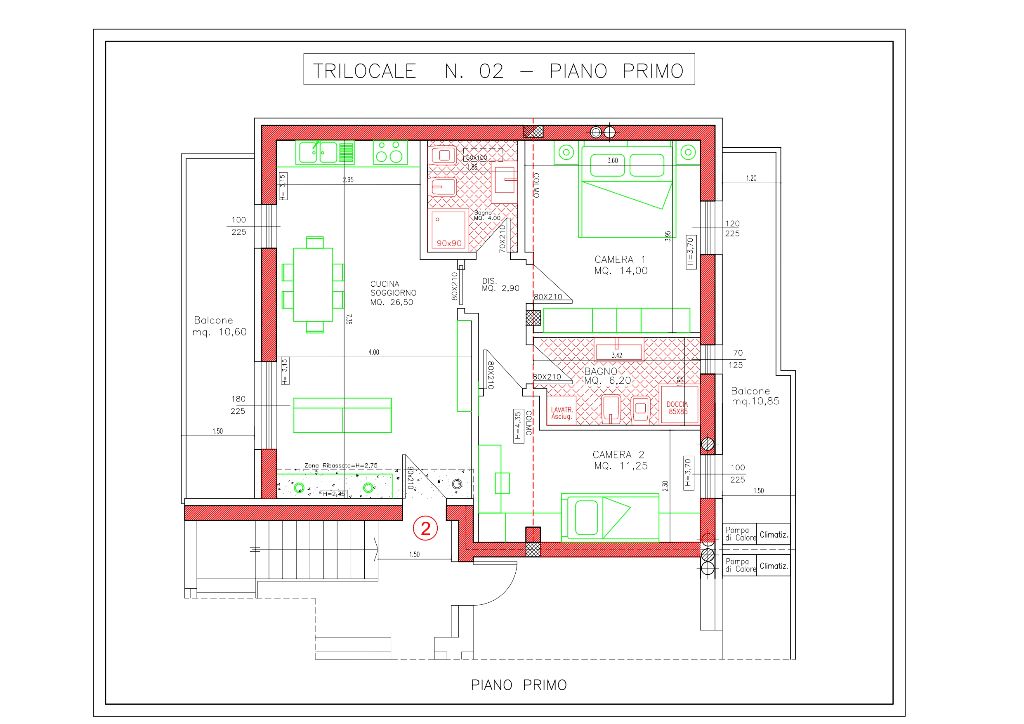
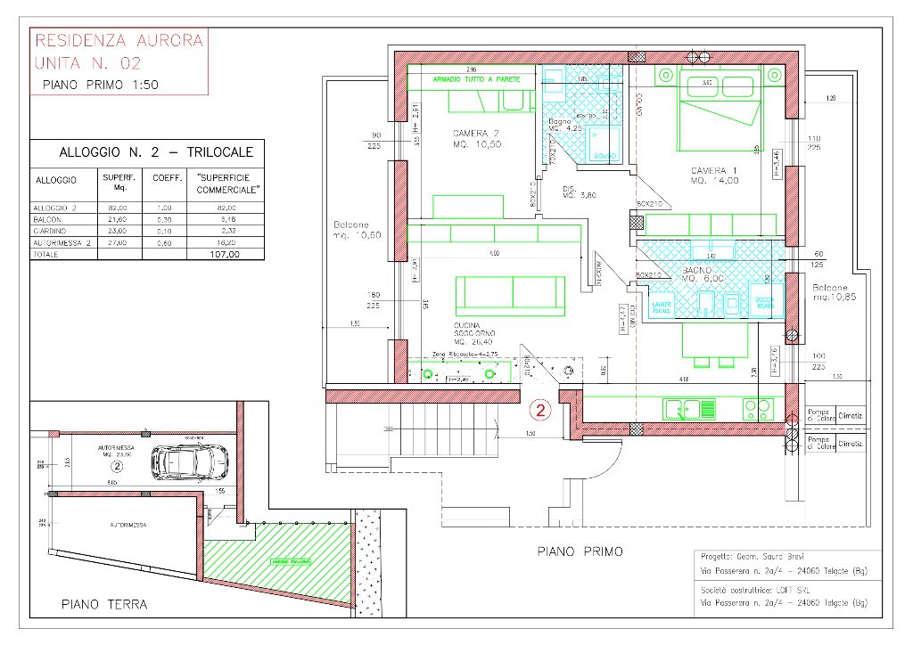
BOLGARE: proponiamo in vendita meraviglioso trilocale ATTICO attualmente in COSTRUZIONE, in complesso di sole 3 unità ABITATIVE, in zona tranquilla e a pochi passi dal centro. L’appartamento sarà composto da: ampio e luminoso soggiorno-cucina , collegato con ampi balconi, disimpegno, 2 camere matrimoniali, collegate ad un ampio balcone ed 2 comodi bagni. Al piano terra realizzeremo una doppia autorimessa con basculante sezionale e un piccolo giardino privato. Capitolato esclusivo con finiture di ottima qualità, riscaldamento a pavimento, pompa di calore, impianto fotovoltaico, previsione certificazione “A2”. FINITURE EXTRALUSSO con possibilità di scelta di materiali di altissima qualità, altissimo risparmio energetico. Pompe di calore alimentate da impianti fotovoltaici singoli per ogni unità. Gli spazi interni come le finiture, saranno a totale discrezione dell'acquirente. Nelle vicinanze AMPIO VERDE PUBBLICO e posti auto .(Le immagine relative ai rendering sono a scopo puramente illustrativo e potrebbero subire variazioni). Immobili disponibili entro aprile 2026. Alleghiamo 2 disegni : abbiamo due diverse soluzioni per razionalizzare gli spazi e farli rendere al meglio. Assolutamente da vedere !
Chiedi informazioni
Richiedi informazioni su questa offerta.
Contatta l'agenzia
Contatta la nostra agenzia per maggiori informazini sulle nostre offerte immobiliari.
035 19770930
info@stelladelnord.net
La tua agenzia immobiliare
Professionalità, sicurezza e serenità per vendere e acquistare casa
Stella del nord - Agenzia Immobiliare
Via Monsignor Valoti, 21 - 24060 Chiuduno (BG)
Telefono e Fax: 035 19770930
E-mail: info@stelladelnord.net
P.IVA: 04523360164